Description
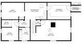
Commercial property with 2,300 SF over 2 levels located at 7859 Highway 14, Windsor, Brooklyn, NS, situated on 1.09 acres LC (Local Commercial) zone. This 25' x 46' two-level building, is currently a dental clinic, with reception waiting area, 3 dental patient rooms, Hygienic room, 2 washrooms. Ideal for Commercial/ Dental/ Daycare use. 0.5 KM from Petro Canada, 0.75 km from Brooklyn District Elementary School & West Hants Middle School. 4.2 KM to Coyote Hill Golf Course.
-
0BEDS
-
1.09ACRES
-
0BATHS
-
01/2 BATHS
-
2,092SQFT
-
$262$/SQFT
Description
Commercial property with 2,300 SF over 2 levels located at 7859 Highway 14, Windsor, Brooklyn, NS, situated on 1.09 acres LC (Local Commercial) zone. This 25' x 46' two-level building, is currently a dental clinic, with reception waiting area, 3 dental patient rooms, Hygienic room, 2 washrooms. Ideal for Commercial/ Dental/ Daycare use. 0.5 KM from Petro Canada, 0.75 km from Brooklyn District Elementary School & West Hants Middle School. 4.2 KM to Coyote Hill Golf Course.
NSAR IDX Reciprocity listings are displayed in accordance with NSAR's IDX Agreements and property information is provided under copyright © by the Nova Scotia Association of REALTORS®. The above information is from sources deemed reliable but it should not be relied upon without independent verification.
Data last updated: 2026-02-14T17:35:23.133.
