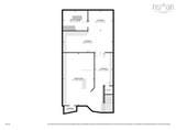
Description
Beautiful Heritage Retail / office building in Downtown Truro. Inglis Place has been a go-to location for unique retail and to experience the small town shopping feel unique to the maritimes. The grade level and 2nd floor consist of over 3100ft2 of actual floor area, with the lower basement level adding another 1600ft2 of space.The full basement is perfect for storage or potentially further retail or business uses. Upgrades over the past couple if years have included replacing the boiler, installing a fibreglass oil tank, new siding, new vinyl windows, 25-year warrantied roofing membrane installed in 2020, and interior cosmetic upgrades in new flooring & lighting fixtures. Floor plans for each floor are included in the pictures as part of the listing.
-
0BEDS
-
0.05ACRES
-
0BATHS
-
01/2 BATHS
-
4,294SQFT
-
$115$/SQFT
Description
Beautiful Heritage Retail / office building in Downtown Truro. Inglis Place has been a go-to location for unique retail and to experience the small town shopping feel unique to the maritimes. The grade level and 2nd floor consist of over 3100ft2 of actual floor area, with the lower basement level adding another 1600ft2 of space.The full basement is perfect for storage or potentially further retail or business uses. Upgrades over the past couple if years have included replacing the boiler, installing a fibreglass oil tank, new siding, new vinyl windows, 25-year warrantied roofing membrane installed in 2020, and interior cosmetic upgrades in new flooring & lighting fixtures. Floor plans for each floor are included in the pictures as part of the listing.
NSAR IDX Reciprocity listings are displayed in accordance with NSAR's IDX Agreements and property information is provided under copyright © by the Nova Scotia Association of REALTORS®. The above information is from sources deemed reliable but it should not be relied upon without independent verification.
Data last updated: 2026-05-08T10:35:36.417.
